TEL:03-3864-1101

物件詳細

売ビル
豊島区西池袋5丁目
売ビル/9,900万円
想定賃料¥396,000-/月☆☆「都道441号線」沿い・駅前角地!!
資料請求・お問い合わせ
物件資料を見る

 

お問合せ番号
12534
価格
9,900万円
交通
東京メトロ福と新鮮「要町」駅 徒歩1分
土地面積
18.42m2
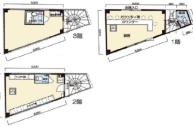
建物面積
63.62m2
建物構造
鉄筋コンクリート・鉄骨造陸屋根
築年月
1983/10
所在地
豊島区西池袋5丁目
間取り
店舗、事務所
建物階数
地下1階付3階建
所在階
建ぺい率
80%
容積率
600%
私道負担
セットバック
接道状況
北東側約11.9m公道(都道441号線)、南西側約5m公道
地目
宅地
都市計画
市街化区域
用途地域
商業地域
法令上の制限
防火地域
設備等
駐車場
なし
現況
賃貸中
土地権利
所有権
引渡時期
相談
建築確認番号
説明事項
取引態様
仲介
次回の更新予定日
2025/11/01
※消費者契約法逐条解説第1章第2条第2項記載の事業者を問合せの対象としています。
※価格は消費税が課税される場合は税込価格で表示しています。
※物件図面と現況が相違する場合は現況を優先します。

【お問合せ先】
株式会社マスターホームズ TEL 03-3864-1101
所在地: 東京都中央区東日本橋2-18-12 1階
担当 : 営業1課
免許番号 : 東京都知事(6)75122号

資料請求・お問い合わせ
物件資料を見る

 
  • PCサイト
  • TOP
  • お問合せ

Copyright©MASTER HOMES Co.,Ltd. All Rights Reserved.