TEL:
03-3864-1101
新宿区市谷薬王寺町
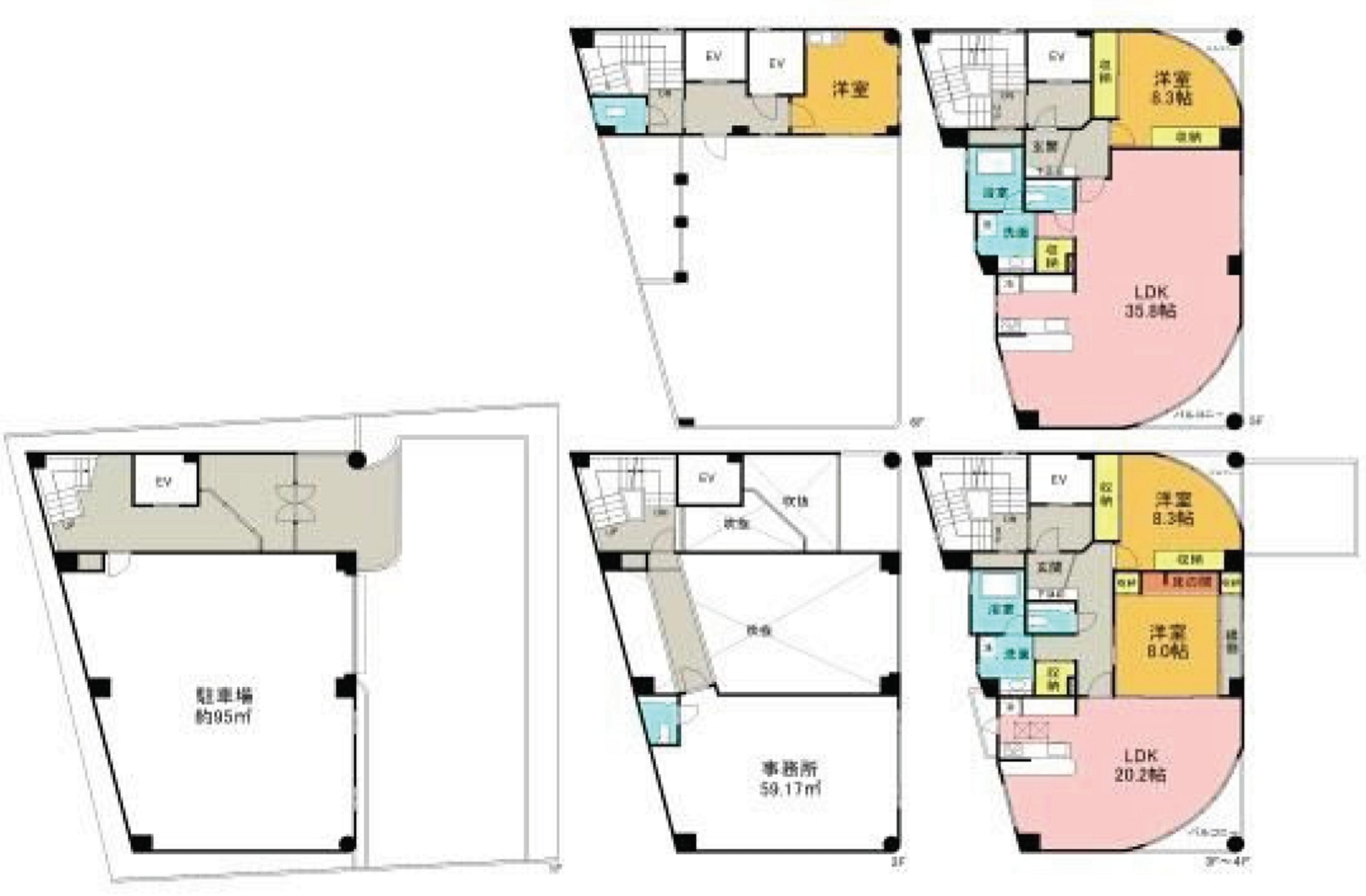
売1棟マンション/72,000万円
オーナーチェンジ☆☆「外苑東通り」沿いに面し視認性有!!
お問合せ番号
12612
価格
72,000万円
交通
都営大江戸線「牛込柳町」駅 徒歩5分
土地面積
185.31m
2
建物面積
598.45m
2
建物構造
鉄筋コンクリート造
築年月
1994/02
所在地
新宿区市谷薬王寺町
間取り
事務所、共同住宅
建物階数
6階建
所在階
建ぺい率
80%
容積率
500%
私道負担
セットバック
接道状況
「外苑東通り」に面す
地目
宅地
都市計画
市街化区域
用途地域
商業地域
法令上の制限
防火地域
設備等
駐車場
有
現況
賃貸中
土地権利
所有権
引渡時期
相談
建築確認番号
説明事項
取引態様
仲介
次回の更新予定日
2025/12/27
※消費者契約法逐条解説第1章第2条第2項記載の事業者を問合せの対象としています。
※価格は消費税が課税される場合は税込価格で表示しています。
※物件図面と現況が相違する場合は現況を優先します。
【お問合せ先】
株式会社マスターホームズ TEL 03-3864-1101
所在地: 東京都中央区東日本橋2-18-12 1階
担当 : 営業1課
免許番号 : 東京都知事(6)75122号
PCサイト
TOP
お問合せ
Copyright©MASTER HOMES Co.,Ltd. All Rights Reserved.