
江戸川区東小岩4丁目 / 売ビル / 11,800万円
お問合せ番号 |
12479
|
江戸川区東小岩4丁目 |
価格(円) |
交通 |
土地面積 |
建物面積 |
建物構造 |
築年月 |
11,800万円 |
JR総武線「小岩」駅 徒歩11分 |
99.18m2
|
248.29m2
|
鉄骨造 |
1991/03 |
自社ビル向き☆☆「柴又街道」沿いに面し視認性有!!
|
所在地 |
江戸川区東小岩4丁目 |
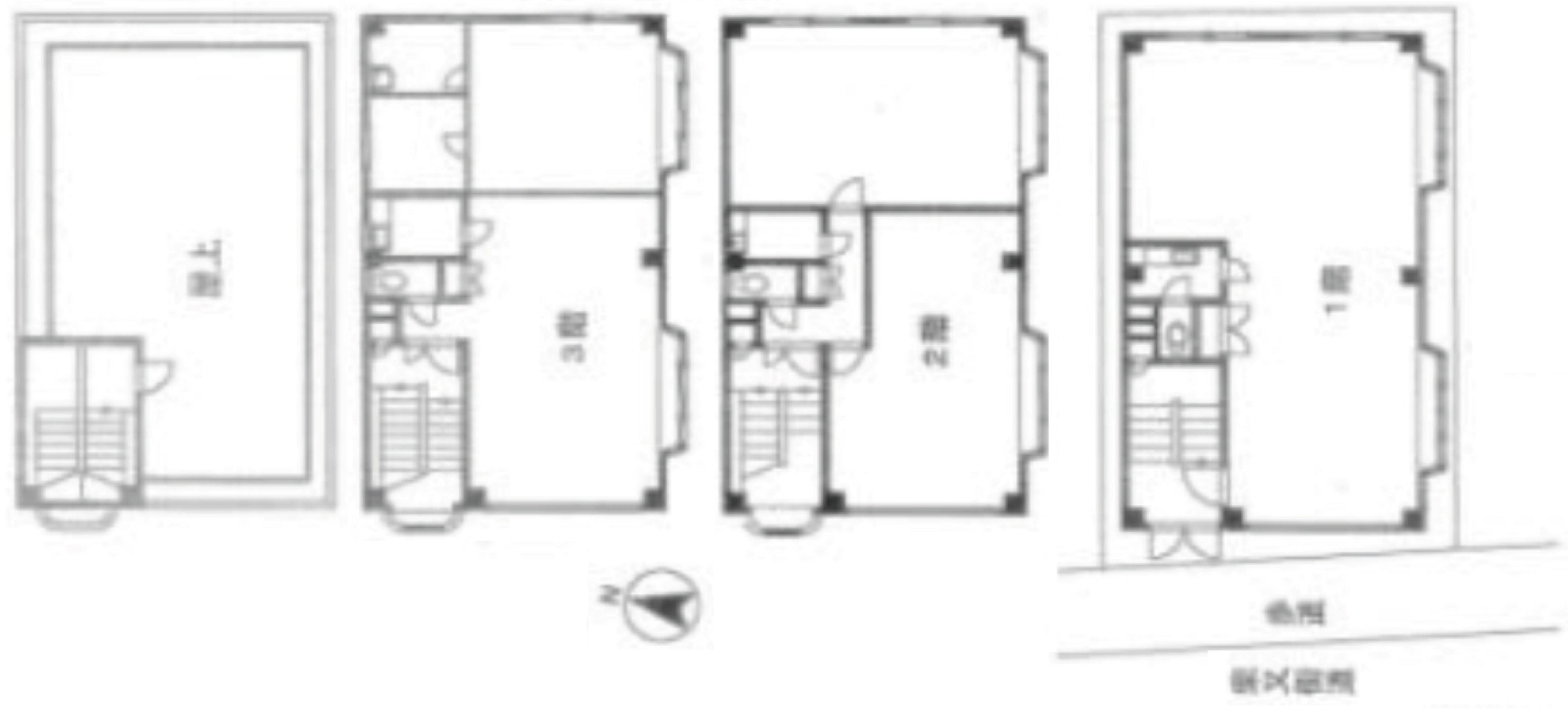
間取り |
事務所 |
建物階数 |
地下1階付3階建 |
所在階 |
|
建ぺい率 |
80% |
容積率 |
300% |
私道負担 |
|
セットバック |
|
接道状況 |
南側約15m公道(柴又街道) |
地目 |
宅地 |
都市計画 |
市街化区域 |
用途地域 |
近隣商業地域 |
法令上の制限 |
|
設備等 |
|
駐車場 |
なし |
現況 |
空 |
土地権利 |
所有権 |
引渡時期 |
相談 |
建築確認番号 |
|
取引態様 |
仲介 |
次回の更新予定日 |
2025/10/18 |
|
※消費者契約法逐条解説第1章第2条第2項記載の事業者を問合せの対象としています。
※価格は消費税が課税される場合は税込価格で表示しています。
※物件図面と現況が相違する場合は現況を優先します。
【お問合せ先】
株式会社マスターホームズ TEL 03-3864-1101
所在地: 東京都中央区東日本橋2-18-12 1階
担当 : 営業1課
免許番号 : 東京都知事(6)75122号