
江戸川区南小岩2丁目 / 売ビル / 11,000万円
お問合せ番号 |
12480
|
江戸川区南小岩2丁目 |
価格(円) |
交通 |
土地面積 |
建物面積 |
建物構造 |
築年月 |
11,000万円 |
JR総武線「小岩」駅 徒歩24分 |
116.84m2
|
243m2
|
鉄骨造陸屋根 |
1990/09 |
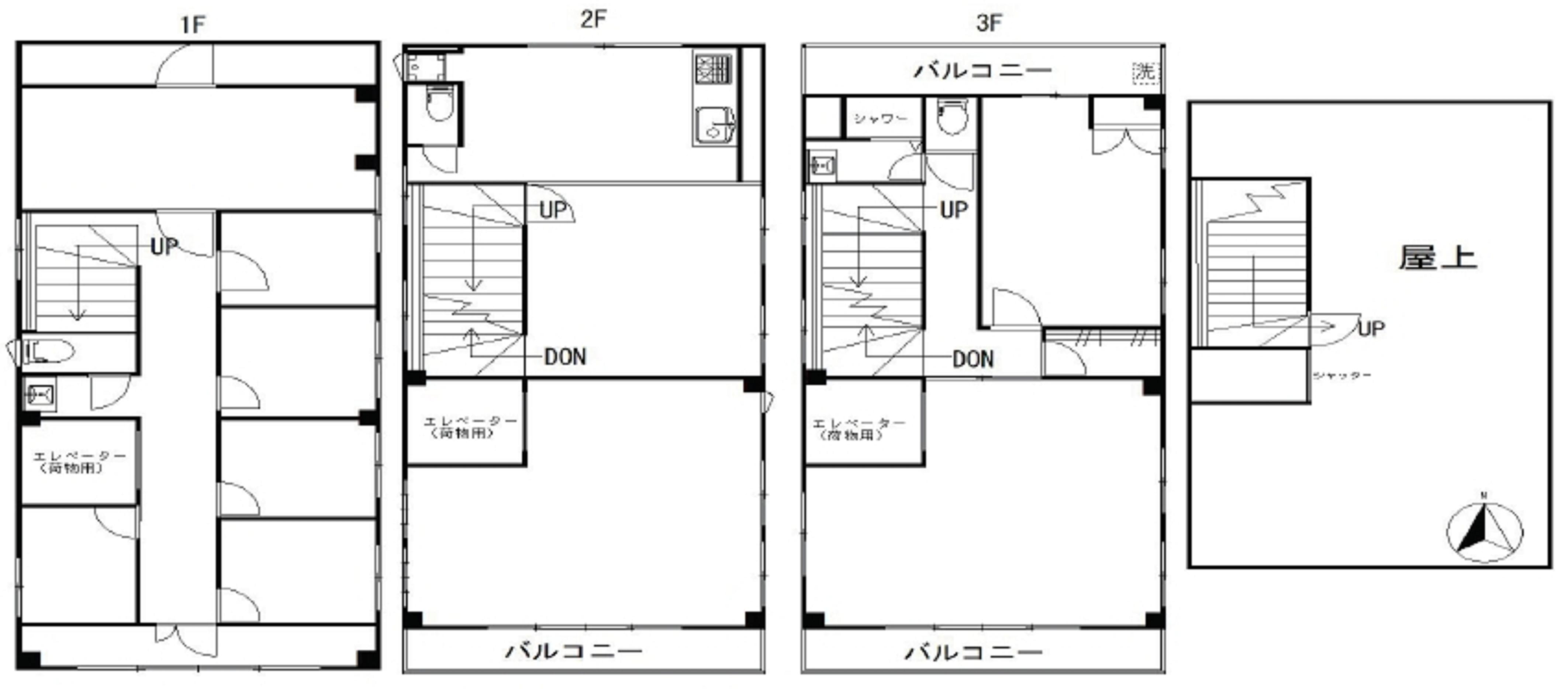
自己利用向き☆☆荷物用エレベーター有!!
|
所在地 |
江戸川区南小岩2丁目 |
間取り |
|
建物階数 |
3階建 |
所在階 |
|
建ぺい率 |
60% |
容積率 |
150% |
私道負担 |
|
セットバック |
|
接道状況 |
南側約6m公道 |
地目 |
宅地 |
都市計画 |
市街化区域 |
用途地域 |
第一種中高層住居専用地域 |
法令上の制限 |
準防火地域 |
設備等 |
|
駐車場 |
|
現況 |
空 |
土地権利 |
所有権 |
引渡時期 |
相談 |
建築確認番号 |
|
説明事項 | 建ぺい率・容積率超過 |
取引態様 |
仲介 |
次回の更新予定日 |
2025/10/18 |
|
※消費者契約法逐条解説第1章第2条第2項記載の事業者を問合せの対象としています。
※価格は消費税が課税される場合は税込価格で表示しています。
※物件図面と現況が相違する場合は現況を優先します。
【お問合せ先】
株式会社マスターホームズ TEL 03-3864-1101
所在地: 東京都中央区東日本橋2-18-12 1階
担当 : 営業1課
免許番号 : 東京都知事(6)75122号