
文京区弥生1丁目 / 事業用地 / 17,700万円
お問合せ番号 |
12513
|
文京区弥生1丁目 |
価格(円) |
交通 |
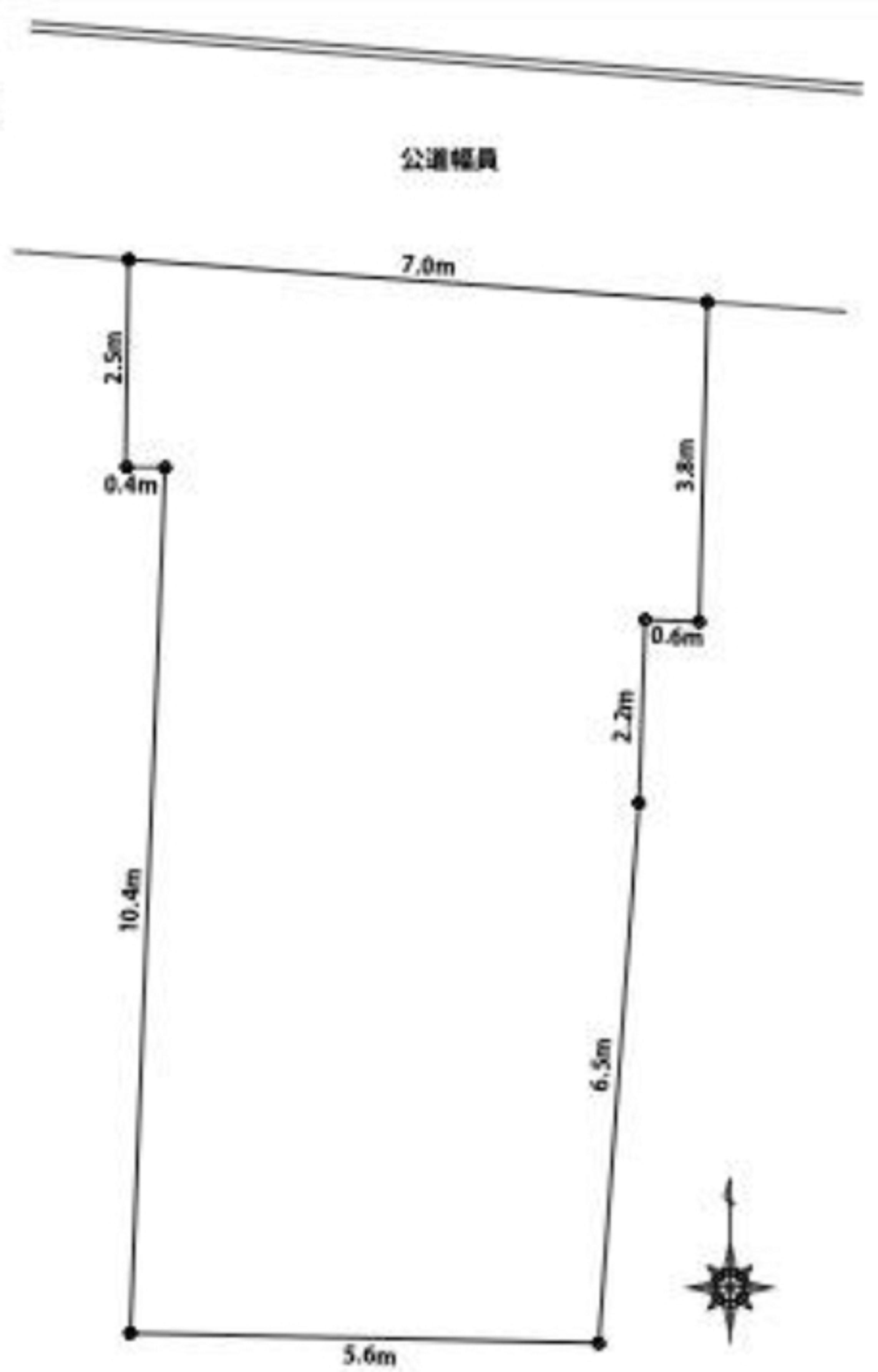
土地面積 |
建物面積 |
建物構造 |
築年月 |
17,700万円 |
東京メトロ南北線「東大前」駅 徒歩5分、都営三田線「白山」駅 徒歩12分、東京メトロ千代田線「根津」駅 徒歩13分 |
78.07m2
|
|
|
|
近隣商業地域☆☆「根津裏門坂」沿いで店舗・事務所用地にオススメ!!
|
所在地 |
文京区弥生1丁目 |
間取り |
|
建物階数 |
|
所在階 |
|
建ぺい率 |
80% |
容積率 |
400% |
私道負担 |
|
セットバック |
|
接道状況 |
北側約14.8m公道(根津裏門坂) |
地目 |
宅地 |
都市計画 |
市街化区域 |
用途地域 |
近隣商業地域 |
法令上の制限 |
|
設備等 |
|
駐車場 |
|
現況 |
更地 |
土地権利 |
所有権 |
引渡時期 |
相談 |
建築確認番号 |
|
取引態様 |
仲介 |
次回の更新予定日 |
2025/11/01 |
|
※消費者契約法逐条解説第1章第2条第2項記載の事業者を問合せの対象としています。
※価格は消費税が課税される場合は税込価格で表示しています。
※物件図面と現況が相違する場合は現況を優先します。
【お問合せ先】
株式会社マスターホームズ TEL 03-3864-1101
所在地: 東京都中央区東日本橋2-18-12 1階
担当 : 営業1課
免許番号 : 東京都知事(6)75122号