
豊島区高田3丁目 / 売1棟マンション / 26,500万円
| お問合せ番号 |
12560
|
| 豊島区高田3丁目 |
| 価格(円) |
交通 |
土地面積 |
建物面積 |
建物構造 |
築年月 |
26,500万円 |
JR山手線「高田馬場」駅 徒歩7分 |
48.67m2
|
130.29m2
|
鉄骨造スレート葺 |
2005/04 |
想定賃料¥1,054,500-/月☆☆「新目白通り」沿い☆検査済証有・民泊業消防工事済!!
|
| 所在地 |
豊島区高田3丁目 |
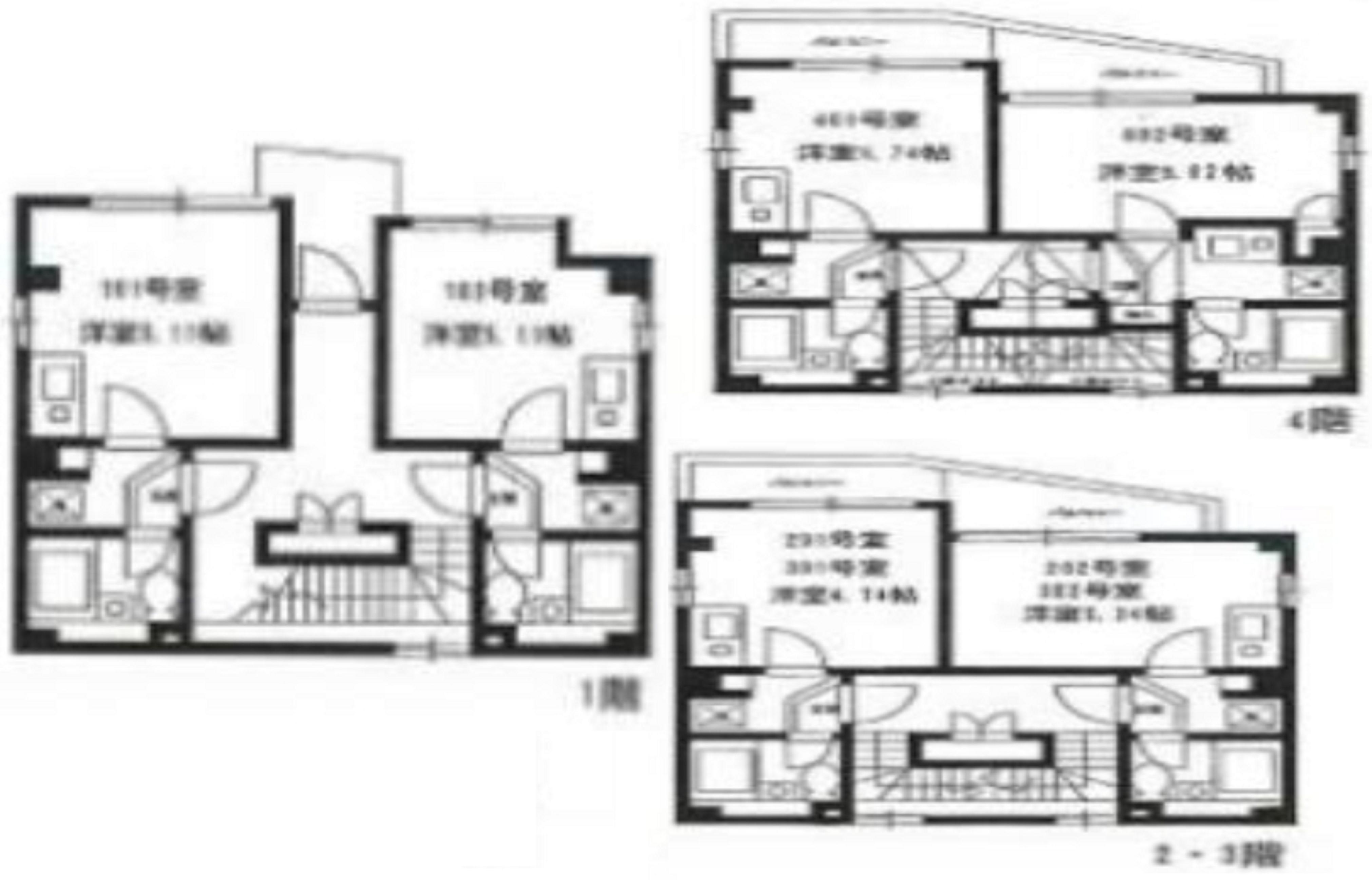
| 間取り |
1R×8 |
| 建物階数 |
4階建 |
所在階 |
|
| 建ぺい率 |
60% |
容積率 |
400% |
| 私道負担 |
|
セットバック |
|
| 接道状況 |
北側約27m公道(新目白通り) |
| 地目 |
宅地 |
都市計画 |
市街化区域 |
| 用途地域 |
準工業地域 |
| 法令上の制限 |
|
| 設備等 |
|
| 駐車場 |
なし |
| 現況 |
賃貸中 |
土地権利 |
所有権 |
| 引渡時期 |
相談 |
| 建築確認番号 |
|
| 取引態様 |
仲介 |
次回の更新予定日 |
2025/11/29 |
|
※消費者契約法逐条解説第1章第2条第2項記載の事業者を問合せの対象としています。
※価格は消費税が課税される場合は税込価格で表示しています。
※物件図面と現況が相違する場合は現況を優先します。
【お問合せ先】
株式会社マスターホームズ TEL 03-3864-1101
所在地: 東京都中央区東日本橋2-18-12 1階
担当 : 営業1課
免許番号 : 東京都知事(6)75122号