
東久留米市東本町 / 売ビル / 51,000万円
| お問合せ番号 |
12567
|
| 東久留米市東本町 |
| 価格(円) |
交通 |
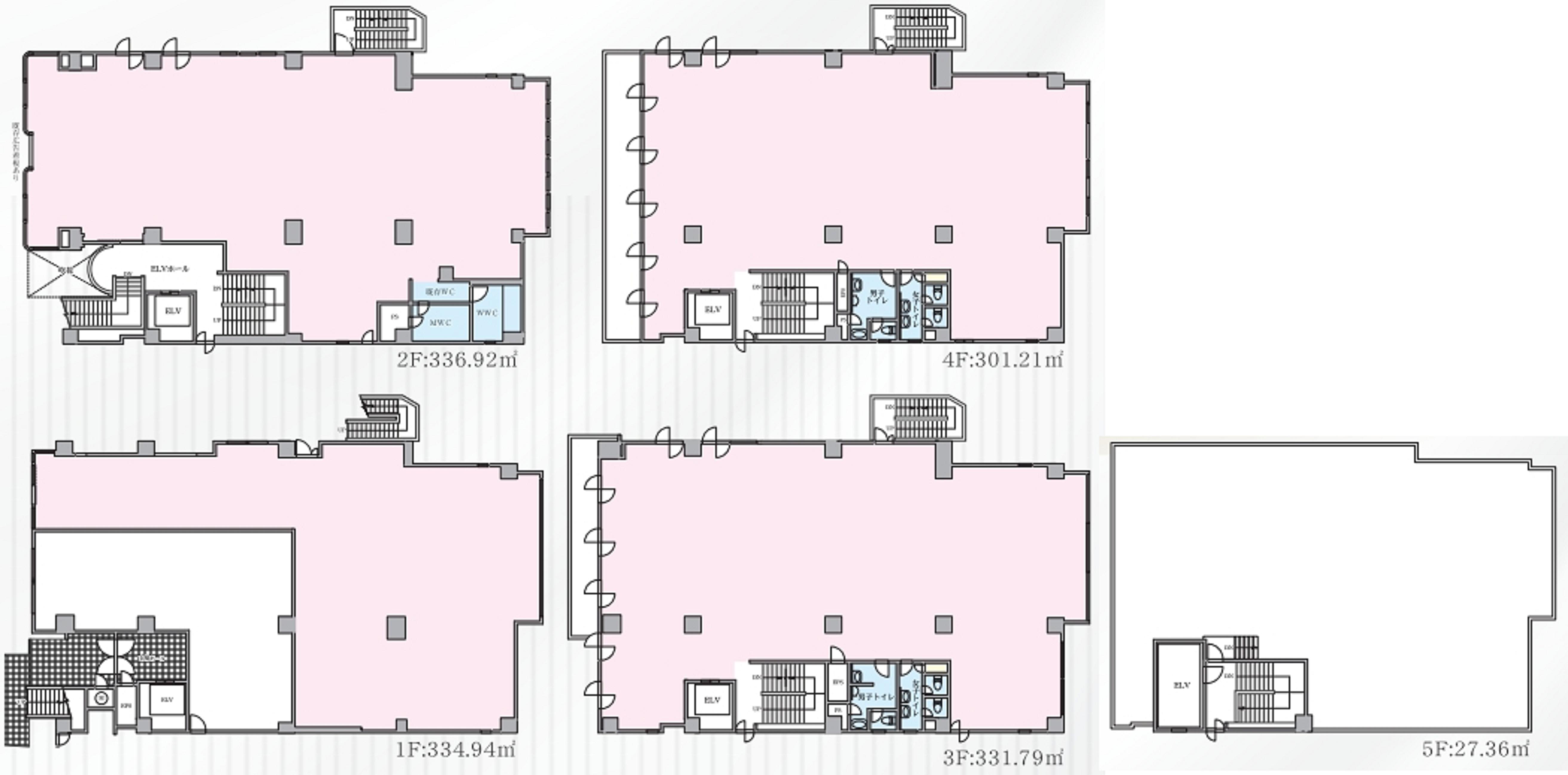
土地面積 |
建物面積 |
建物構造 |
築年月 |
51,000万円 |
西武池袋線「東久留米」駅 徒歩1分 |
476.65m2
|
1332.22m2
|
鉄筋コンクリート造陸屋根 |
1985/04 |
想定賃料¥2,423,564-/月☆☆駅前繁華街ビル☆検査済証有!!
|
| 所在地 |
東久留米市東本町 |
| 間取り |
店舗×5 |
| 建物階数 |
5階建 |
所在階 |
|
| 建ぺい率 |
80% |
容積率 |
400% |
| 私道負担 |
|
セットバック |
|
| 接道状況 |
南西側約5.7m公道 |
| 地目 |
宅地 |
都市計画 |
市街化区域 |
| 用途地域 |
商業地域 |
| 法令上の制限 |
防火地域、東久留米駅東口地区地区計画区域 |
| 設備等 |
|
| 駐車場 |
なし |
| 現況 |
賃貸中 |
土地権利 |
所有権 |
| 引渡時期 |
相談 |
| 建築確認番号 |
|
| 取引態様 |
仲介 |
次回の更新予定日 |
2025/11/29 |
|
※消費者契約法逐条解説第1章第2条第2項記載の事業者を問合せの対象としています。
※価格は消費税が課税される場合は税込価格で表示しています。
※物件図面と現況が相違する場合は現況を優先します。
【お問合せ先】
株式会社マスターホームズ TEL 03-3864-1101
所在地: 東京都中央区東日本橋2-18-12 1階
担当 : 営業1課
免許番号 : 東京都知事(6)75122号