
世田谷区弦巻3丁目 / 売寮 / 24,800万円
| お問合せ番号 |
12607
|
| 世田谷区弦巻3丁目 |
| 価格(円) |
交通 |
土地面積 |
建物面積 |
建物構造 |
築年月 |
24,800万円 |
東急田園都市線「桜新町」駅 徒歩12分 |
179.96m2
|
300.79m2
|
鉄筋コンクリート造 |
1992/08 |
自社利用向き☆☆主要採光南向き!!
|
| 所在地 |
世田谷区弦巻3丁目 |
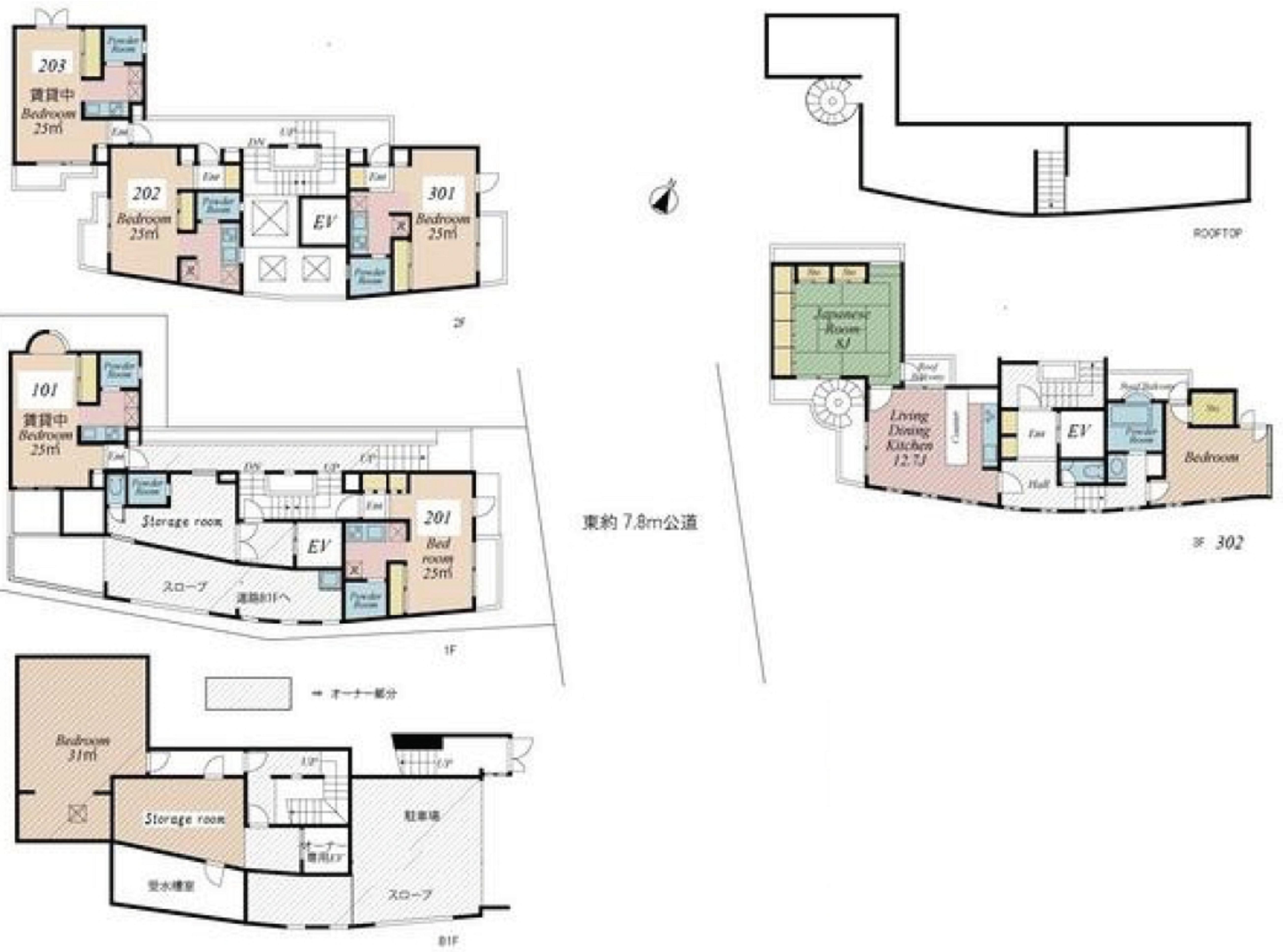
| 間取り |
1R×5、2SLDK |
| 建物階数 |
地下1階付3階建 |
所在階 |
|
| 建ぺい率 |
60% |
容積率 |
200% |
| 私道負担 |
|
セットバック |
|
| 接道状況 |
東側約7.8m公道 |
| 地目 |
宅地 |
都市計画 |
市街化区域 |
| 用途地域 |
第一種中高層住居専用地域 |
| 法令上の制限 |
|
| 設備等 |
|
| 駐車場 |
有 |
| 現況 |
空 |
土地権利 |
所有権 |
| 引渡時期 |
相談 |
| 建築確認番号 |
|
| 取引態様 |
仲介 |
次回の更新予定日 |
2026/03/21 |
|
※消費者契約法逐条解説第1章第2条第2項記載の事業者を問合せの対象としています。
※価格は消費税が課税される場合は税込価格で表示しています。
※物件図面と現況が相違する場合は現況を優先します。
【お問合せ先】
株式会社マスターホームズ TEL 03-3864-1101
所在地: 東京都中央区東日本橋2-18-12 1階
担当 : 営業1課
免許番号 : 東京都知事(6)75122号