
台東区浅草橋3丁目 / 売事務所 / 8,250万円
| お問合せ番号 |
12620
|
| 台東区浅草橋3丁目 |
| 価格(円) |
交通 |
土地面積 |
建物面積 |
建物構造 |
築年月 |
8,250万円 |
JR総武線・都営浅草線「浅草橋」駅 徒歩5分、都営大江戸線「蔵前」駅 徒歩8分 |
|
63.49m2
|
鉄骨鉄筋コンクリート造 |
1993/03 |
自己利用向き☆☆2026年2月上旬リフォーム完了予定(1F床タイル張替え、2F床カーペット張替え、1F・2F壁クロス張替え、天井ポート塗装、ミニキッチン交換、トイレ交換、エアコン交換)☆☆
※管理形態:全部委託、管理方式:日勤、管理費¥20,400-/月、修繕積立金¥10,200-/月
|
| 所在地 |
台東区浅草橋3丁目 |
| 間取り |
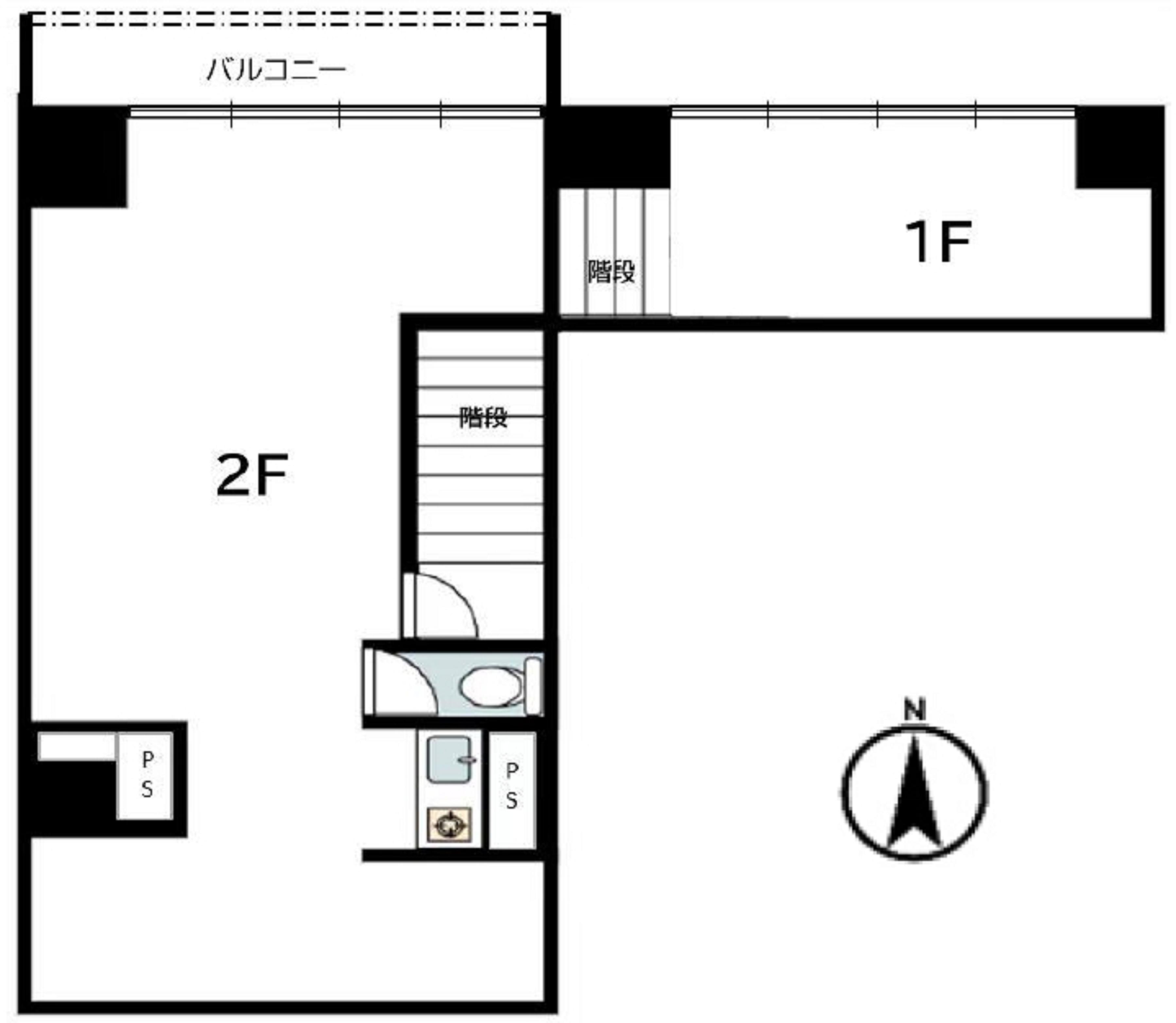
事務所 |
| 建物階数 |
地下1階付10階建 |
所在階 |
1・2階 |
| 建ぺい率 |
|
容積率 |
|
| 私道負担 |
|
セットバック |
|
| 接道状況 |
|
| 地目 |
|
都市計画 |
|
| 用途地域 |
|
| 法令上の制限 |
|
| 設備等 |
|
| 駐車場 |
|
| 現況 |
空 |
土地権利 |
所有権 |
| 引渡時期 |
相談 |
| 建築確認番号 |
|
| 取引態様 |
仲介 |
次回の更新予定日 |
2025/12/27 |
|
※消費者契約法逐条解説第1章第2条第2項記載の事業者を問合せの対象としています。
※価格は消費税が課税される場合は税込価格で表示しています。
※物件図面と現況が相違する場合は現況を優先します。
【お問合せ先】
株式会社マスターホームズ TEL 03-3864-1101
所在地: 東京都中央区東日本橋2-18-12 1階
担当 : 営業1課
免許番号 : 東京都知事(6)75122号