
台東区東上野5丁目 / 売ビル / 17,800万円
| お問合せ番号 |
12642
|
| 台東区東上野5丁目 |
| 価格(円) |
交通 |
土地面積 |
建物面積 |
建物構造 |
築年月 |
17,800万円 |
東京メトロ銀座線「稲荷町」駅 徒歩2分、JR各線「上野」駅 徒歩5分、JR京成本線「京成上野」駅 徒歩10分 |
48.42m2
|
292.26m2
|
鉄骨・鉄骨鉄筋コンクリート造陸屋根 |
1996/03 |
自己利用向き☆☆「浅草通り」沿いで視認性有!!
※借地権(地代¥80,000-/月)
|
| 所在地 |
台東区東上野5丁目 |
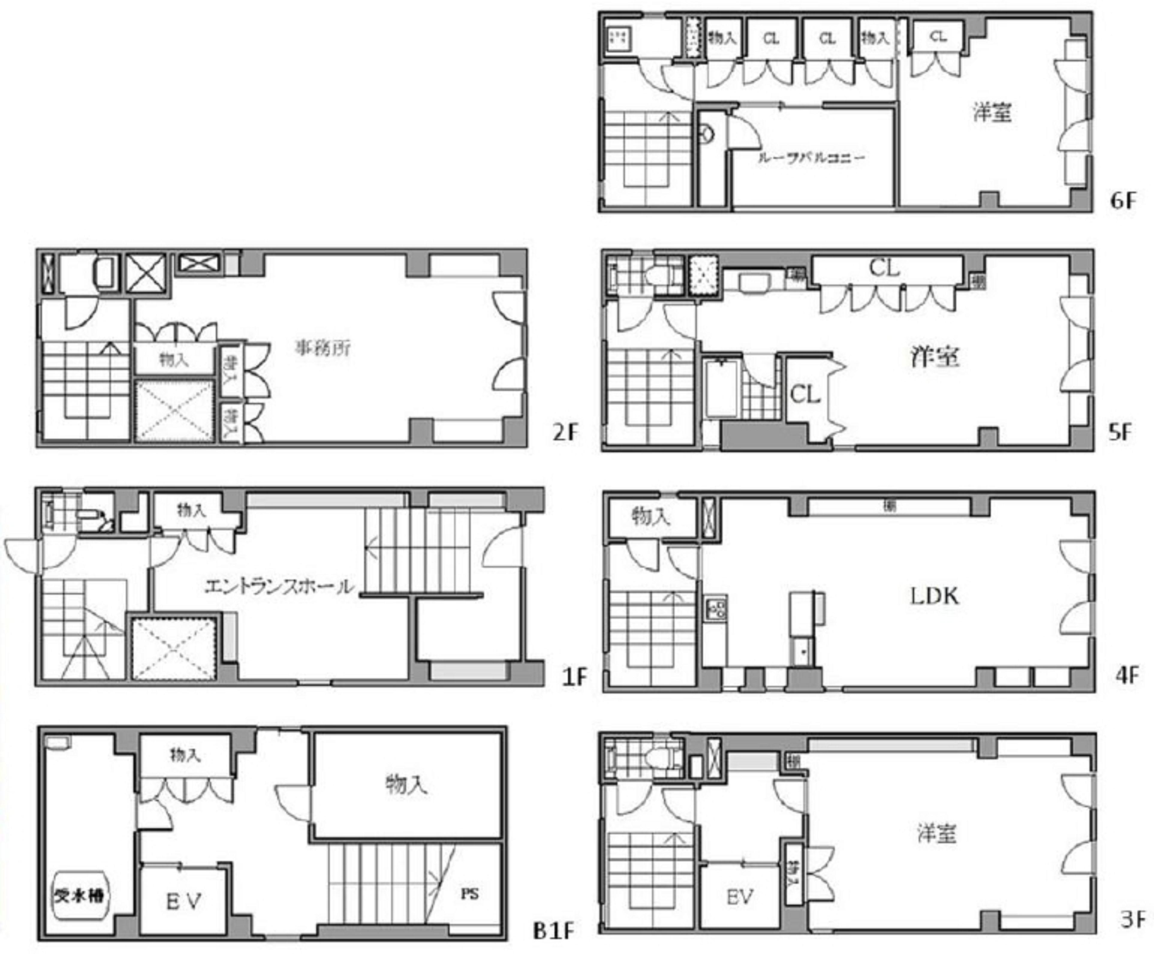
| 間取り |
事務所、3LDK |
| 建物階数 |
地下1階付6階建 |
所在階 |
|
| 建ぺい率 |
80% |
容積率 |
700% |
| 私道負担 |
|
セットバック |
|
| 接道状況 |
南側約33m公道(浅草通り) |
| 地目 |
宅地 |
都市計画 |
市街化区域 |
| 用途地域 |
商業地域 |
| 法令上の制限 |
防火地域、駐車場整備地区、東上野四・五丁目地区地区計画 |
| 設備等 |
|
| 駐車場 |
なし |
| 現況 |
使用中 |
土地権利 |
借地権(地代¥80,000-/月) |
| 引渡時期 |
相談 |
| 建築確認番号 |
|
| 取引態様 |
仲介 |
次回の更新予定日 |
2026/03/21 |
|
※消費者契約法逐条解説第1章第2条第2項記載の事業者を問合せの対象としています。
※価格は消費税が課税される場合は税込価格で表示しています。
※物件図面と現況が相違する場合は現況を優先します。
【お問合せ先】
株式会社マスターホームズ TEL 03-3864-1101
所在地: 東京都中央区東日本橋2-18-12 1階
担当 : 営業1課
免許番号 : 東京都知事(6)75122号