
流山市南流山7丁目 / 売1棟マンション / 8,200万円
| お問合せ番号 |
12709
|
| 流山市南流山7丁目 |
| 価格(円) |
交通 |
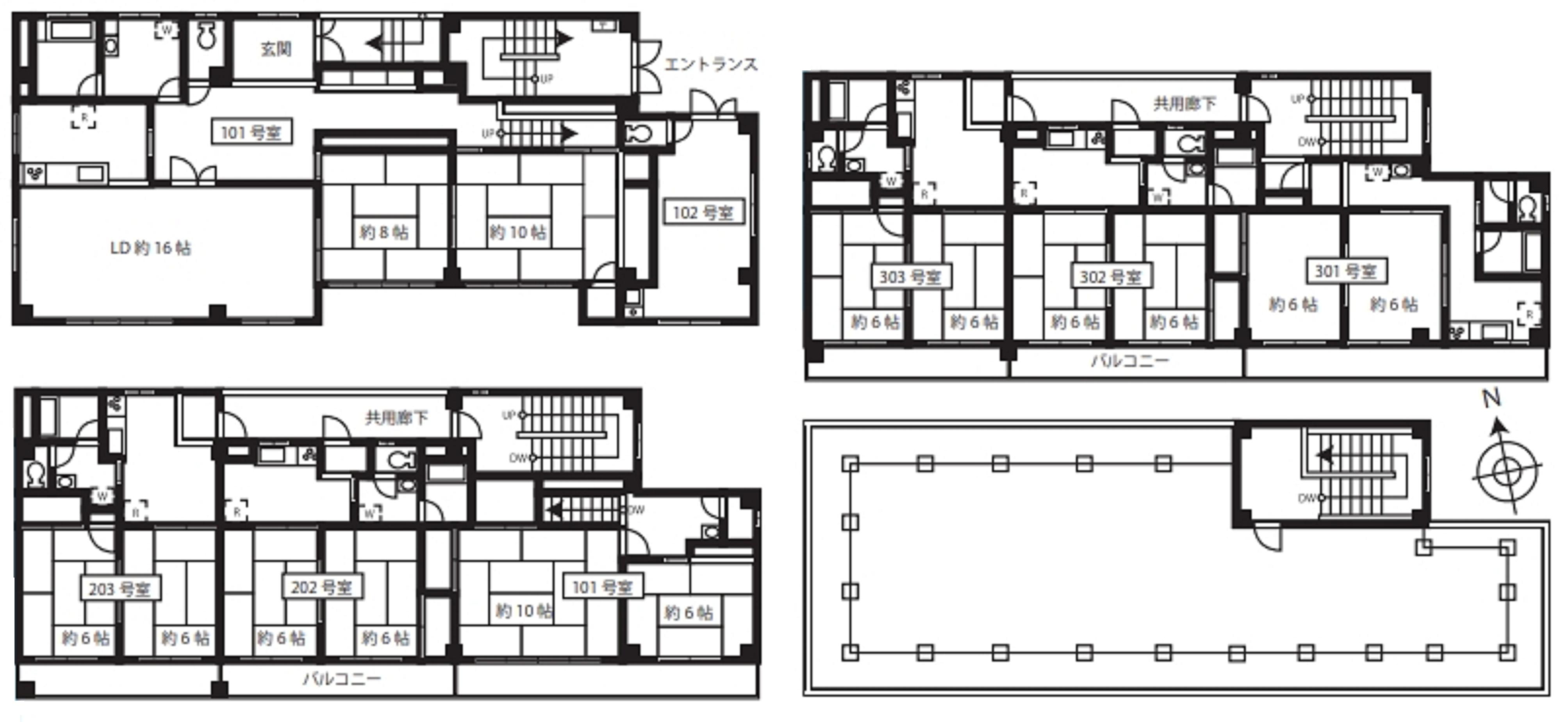
土地面積 |
建物面積 |
建物構造 |
築年月 |
8,200万円 |
JR武蔵野線・つくばエクスプレス「南流山」駅 徒歩16分 |
242m2
|
393.29m2
|
鉄骨造陸屋根 |
1989/06 |
想定賃料¥410,500-/月☆☆2018年2月大規模修繕工事済☆区画整理地で道路も広く整った街並み!!
|
| 所在地 |
流山市南流山7丁目 |
| 間取り |
1R、2K×4,4LDK |
| 建物階数 |
3階建 |
所在階 |
|
| 建ぺい率 |
60% |
容積率 |
200% |
| 私道負担 |
|
セットバック |
|
| 接道状況 |
北側約6m公道、西側約6m公道 |
| 地目 |
田 |
都市計画 |
市街化区域 |
| 用途地域 |
第一種住居地域 |
| 法令上の制限 |
建築基準法22条区域、広告物条例、居住誘導地区、景観法 |
| 設備等 |
|
| 駐車場 |
有(1台) |
| 現況 |
賃貸中 |
土地権利 |
所有権 |
| 引渡時期 |
相談 |
| 建築確認番号 |
|
| 取引態様 |
仲介 |
次回の更新予定日 |
2026/02/21 |
|
※消費者契約法逐条解説第1章第2条第2項記載の事業者を問合せの対象としています。
※価格は消費税が課税される場合は税込価格で表示しています。
※物件図面と現況が相違する場合は現況を優先します。
【お問合せ先】
株式会社マスターホームズ TEL 03-3864-1101
所在地: 東京都中央区東日本橋2-18-12 1階
担当 : 営業1課
免許番号 : 東京都知事(6)75122号